Produktbeschreibung
Produktbeschreibung
- RLT Kompaktgerät mit Wärmerückgewinnung. Anschlussfertig mit integriertem Controller und automatischem Bypass.
- Horizontale Ausführung (H): wahlweise für Innenaufstellung oder Deckenbefestigung, mit Regendach und Außenhaube auch als flaches Gerät zur Außenaufstellung geeignet.
- Vertikale Ausführung (V): wahlweise für Innen- oder Außenaufstellung.
- Leicht revisionierbar durch seitlich öffenbare und abnehmbare Revisionstüren. Geräteklassifikation A1 nach DIN 4102 (nicht brennbar). ErP- konform, VDI 6022 konform.
- Einhaltung folgender Richtlinien: Maschinenrichtlinie 2006/42/EC (Niederspannungsrichtlinie enthalten), EMV-Richtlinie 2014/30/EU, Ecodesign-Richtlinie 2009/125/EC (Regulierung Nr. 1253/2014 - LOT6) ,RoHS 2 Richtlinie 2011/65/EU.
Einsatzbereich
- Hocheffiziente RLT-Kompaktgeräte mit Wärmerückgewinnung für Gewerbe, Industrie, Büro- und Wohnungsbau.
Gehäuse
- Monoblockgehäuse in selbsttragender Rahmenbauweise. Die Gehäusestruktur besteht aus Aluminiumprofilen mit thermischen Trennungen durch in das Profil eingebaute Polyamid-Distanzstücke (Klasse TB2 gemäß EN 1886). Die Ecken bestehen aus glasfaserverstärktem Polyamid. Die Isolierung zwischen den doppelwandigen Paneelen besteht aus 45 mm (70 kg/m3) Steinwolle, was zu einer Wärmedurchgangsklasse T2 führt. Geräteklassifikation A1 nach DIN 4102 (nicht brennbar).
- Gehäuseklassifikation nach DIN EN 1886:
Wärmedurchgangskoeffizient: T2
Wärmebrückenfaktor: TB2
Gehäuse-Leckage-Klasse: L2
Mechanische Stabilität: D1
Filter-Bypass-Leckage: F9 (= <2%)
- Die Außenpaneele sind pulverbeschichtet in RAL 7047.
- Innenseite: Verzinktes Stahlblech. Glatte Innenoberflächen. In Kabelschutzrohren auf Abstandshaltern verlegte elektrische Leitungen. Separates, abschließbares Technikfach in Schutzklasse IP 65, in dem die elektrischen Komponenten und die Regelung untergebracht sind. Großzügig bemessene Revisionsöffnungen ermöglichen einen einfachen Zugang zu allen internen Komponenten bei Wartungsarbeiten.
- Kondensatwanne aus Edelstahl, alle weiteren Einbauteile sind aus verzinktem Stahl, Aluminium oder Edelstahl und somit hygienisch im Sinne der VDI 6022.
Paneele und Revisionstüren
- Wärmebrückenoptimierte Paneele und Revisionstüren aus verzinktem Stahlblech, thermisch entkoppelt, pulverbeschichtet zum besonderen Schutz vor Korrosion. Doppelwandiger Aufbau der Paneele in Sandwichbauweise mit innenliegender, nicht brennbarer Steinwolle (Stärke: 45 mm, Dichte 70 kg/m3, Baustoffklasse A1 nach DIN 4102 (nicht brennbar)) für beste Schall- und Wärmedämmung.
- Über die gesamte Bedienhöhe des Gerätes sind beidseitig seitlich großzügig bemessene Revisionsöffnungen für optimalen Zugang nach VDI 6022 platziert und ermöglichen einen einfachen Zugang bei Wartungsarbeiten.
- Die Revisionstüren sind mit druckadaptiver Dichtung zur Anpassung an die Druckverhältnisse im Gerät ausgestattet.
Beschichtung
- Die Beschichtung der Außenpaneele ist UV-beständig pulverbeschichtet in RAL 7047 und bietet besonderen Schutz vor Korrosion.
Montage
- Zur stehenden Bodenmontage ist das Gerät mit 100 mm hohem Profilfüßen ausgestattet. Die Profilfüße sind bei Bedarf demontierbar.
- Zur hängenden Deckenmontage kann das Horizontale Gerät (H) mit optionalen Deckenmontagewinkeln für Gewindestangen M12 ausgestattet werden.
- Zur Außenaufstellung sind optional erhältlich:
Außenluft- und Fortluftklappen mit Klappenstellmotor
Regenschutz für Klappenstellmotor
Außen- und Fortlufthauben
Regendach
Unterdrucksiphon
Siphonbegleitheizung
Ventilatoren
- Direkt angetriebene, einseitig saugende EC-Radialventilatoren mit rückwärts gekrümmten Laufradschaufeln aus Verbundwerkstoff für optimierten Wirkungsgrad und minimierten Geräuschpegel. Wartungsfreie, abgedichtete Kugellager mit Langzeitschmierung. Befestigt direkt in Frontkammer ohne zusätzliche Montageschiene zur vollständigen Reinigbarkeit nach VDI 6022.
- Laufrad aus hochfesten Verbundwerkstoffen mit strömungsoptimierter Einströmdüse aus verzinktem Stahlblech mit Druckmessstutzen. Statisch und dynamisch gewuchtetes Laufrad gemäß DIN ISO 21940-11. Schwingungsgeprüft in Anlehnung an die ISO 14694, max. Schwingstärke beträgt 3,5 mm/s.
- EC-Außenläufermotor mit integrierter Steuerungselektronik ohne Seltene-Erden Magnete mit hocheffizienter elektronischer Kommutierung (EC), integrierter thermischer Abschaltung und Drehzahlregelung. Die EC-Technologie ist eine ökologische Lösung, welche einen niedrigen Energieverbrauch für Steuerung, Kontrolle und Regelung des Betriebspunktes bei Volumenströmen von 10 bis 100 % gewährleistet. Dies begünstigt einen niedrigen Geräuschpegel für besseren akustischen Komfort. Integrierter Blockierschutz, Phasenausfallerkennung, Sanftanlauf, Übertemperaturschutz Elektronik, Motorunterspannungsausfallerkennung, Leistungsbegrenzung, Motorstrombegrenzung.
- Die Ventilatoren erfüllen die aktuellen EMV-Richtlinien und Anforderungen bezüglich Netzrückwirkungen und EMV-Störfestigkeit.
- Schutzart des Ventilators: IP 55, Isolationsklasse F, Feuchte- (F) / Umweltschutzklasse (H) H1.Die Wirkungsklasse des Motors übertrifft die Klasse IE4.
Wärmerückgewinnung
- Hocheffizienter sechseckiger Gegenstrom-Plattenwärmetauscher aus seewasserbeständigem Aluminium. Wirkungsgrad > 90 % nach DIN EN 13141-7, größer 87% nach ErP Ecodesignrichtlinie 1253/2014.
- Eurovent zertifiziert. Zur Nutzung der sensiblen und latenten Wärmeenergie welche in den Luftströmen enthalten ist. Die Außenluft- und Abluftströme werden getrennt über parallel angeordnete dünne Aluminiumplatten im Gegenstromprinzip aneinander vorbeigeführt. Der integrierte Bypass im Außenluft- / Zuluftstrom angeordnet sichert den Einfrierschutz im Frostschutzfall und dient der freien Kühlung im Sommerfall.
Kondensatwanne:
- Hygienisch einwandfreier Kondensatablauf im Gerät durch Edelstahlkondensatwanne, lasergeschweißt. Anschlussdurchmesser . Komplett unter dem Wärmetauscher platziert.
Bypassklappe
- Bypassklappe zur freien Kühlung und zum Frostschutz. Modulierend durch stetig regelnden Bypassantrieb. Handverstellung mit Drucktaste möglich. Der Antrieb ist überlastsicher und wartungsfrei. Leistungsverbrauch im Betrieb 1.5 W, Leistungsverbrauch in Ruhestellung 0.4 W. Bypassklappen im Aluminiumgehäuse mit Zahnradgetriebe und gegenläufig gekoppelten, kunststoffgelagerten Profillamellen aus Aluminium mit Dichtlippe, Dichtigkeitsklasse 2 gemäß DIN EN 1751. Klappenantrieb sowie Zahnräder außerhalb des Luftstroms angeordnet, dadurch für erhöhte Hygienebedingungen nach VDI 6022 geeignet. Energiesparender fertig verdrahteter Klappenantrieb als stetig regelnder Stellmotor für Modulation von 0 bis 100%.
- Der integrierte Bypass im Außenluft- / Zuluftstrom angeordnet sichert den Einfrierschutz im Frostschutzfall und dient der freien Kühlung im Sommerfall. Wenn das Gerät mit einer elektrischen Vorheizung ausgestattet ist, wählt die Regelung automatisch die optimale Lösung. Im Sommerfall regelt der Bypass durch Modulation auf die eingestellte Zulufttemperatur.
Filter
- Das Wärmerückgewinnungsgerät ist standardmäßig mit einem hocheffizienten ePM1 50 % Filter am Außenlufteingang und einem ePM10 50 % Paneelfilter am Ablufteingang ausgestattet. Die Filter werden stets vor den jeweiligen Bauteilen angebracht, um deren Schutz zu gewährleisten. Sie sind auf Schienen mit Lippendichtungen montiert, um eine effektive Luftdichtheit zu gewährleisten. Filtermeldung via Druckdifferenzmessung am Außenluftfilter und am Abluftfilter, einstellbar von 50 bis 500 Pascal, voreingestellt auf 150 Pascal.
Kanalanschluss
- Geräte mit runden Kanalanschlüssen werden mit Gummilippendichtungen geliefert.
- Geräte mit rechteckigen Kanalanschlüssen sind für den Anschluss von Rechteckkanal mit 20 mm Profil vorgesehen. Das Profil ist mit einem Dichtungsband zu ergänzen.
- Anschlussgröße gemäß technischen Daten.
Absperrklappen für Außenluft und Fortluft
- Außenluft- und Fortluftklappen im Aluminiumgehäuse mit Zahnradgetriebe und gegenläufig gekoppelten, kunststoffgelagerten Profillamellen aus Aluminium mit Dichtlippe, Dichtigkeitsklasse 2 gemäß DIN EN 1751. Klappenantrieb sowie Zahnräder außerhalb des Luftstroms angeordnet, dadurch für erhöhte Hygienebedingungen nach VDI 6022 geeignet.
- Außenluft- und Fortluftklappen sind optional bestellbar. Die Klappen werden bei Bestellung werkseitig außen am Geräterahmen montiert und der Stellmotor elektrisch angeschlossen.
- Anschlussgröße gemäß technischen Daten.
Technikfach
- Separates, abschließbares Technikfach in Schutzklasse IP 65, in dem die elektrischen Komponenten und die Regelung untergebracht sind. Separate Ablage innerhalb des Technikfaches für beiliegendes Schaltplanheft.
- Kabelenden innerhalb des Technikfaches mit eindeutiger Nummerierung mittels Kabelkennzeichnung an jedem Anschlusspunkt und in beiliegenden Anschlussplan zur verwechslungsfreien Zuordnung.
Kabelanschluss
- Plug & Play Anschluss: 5-poliger Anschluss am Klemmblock X1 innerhalb des separaten, abschließbaren Technikfaches.
- Bemessungsspannung gemäß technischen Daten.
- Empfohlener Fehlerstromschutzschalter: Klasse B oder B+, Auslösefehlerstrom siehe technische Daten.
- Empfohlene Sicherungen für Netzanschluss: D-Typ träge, D-10.000 A - AC3
Elektrische Verdrahtung
- Industriell gefertigter Kabelbaum, übersichtliche Leitungsverlegung und ungehinderter Zugang zu den Komponenten bei Wartung sowie beste Reinigungsmöglichkeit der Oberflächen.
- Kabelenden innerhalb des Technikfaches mit eindeutiger Nummerierung mittels Kabelkennzeichnung an jedem Anschlusspunkt und in beiliegenden Anschlussplan zur verwechslungsfreien Zuordnung.
- Aufgeräumte Kabelverlegung mit einzelnen Kabelschutzschläuchen und Abstandshaltern zu den Komponenten innerhalb des Gerätes. Kabelschutzschläuche in Kabelverschraubung eingeführt, keine offenen Leitungen sichtbar.
Regelung
- Vollintegrierte, komplett verkabelte Regeleinheit inkl. allpolig trennenden Hauptschalter. Regeleinheit komplett vor Umwelteinflüssen in Technikfach Schutzart IP 65 integriert.
- Integrierter Webbrowser.
- Integrierte Sicherungselemente für sämtliche auf das Lüftungsgerät abgestimmte Steuer- und Regelungsfunktionen:
- Motorschutzschalter mit Phasenausfallerkennung, Kurzschluss-Schutz mit magnetischem Kurzschlussauslöser.
- Leitungsschutzschalter 230 V, Auslösecharakteristikklasse C,
- IG-Reparaturschalter, 4-phasig, IP 54, CE-konform,
- Gewährleistung der elektrischen Sicherheit gem. folgender Richtlinien: Maschinenrichtlinie 2006/42/EC (Niederspannungsrichtlinie enthalten), EMV-Richtlinie 2014/30/EU sowie komplette Funktionsprüfung ab Werk.
- Betriebsfertig mit Reparaturschalter. Integriertes Schaltnetzteil 230 V AC / 24 V DC, 2,5 A.
- Zeitprogrammierung für Wochenpläne inklusive Ferien und Feiertage für ein ganzes Jahr. Automatische Sommer- und Winterzeitumstellung. Individueller Zeitplan für jeden Wochentag plus separatem Ferien- und Feiertagsplan. Bis zu 24 verschiedene Ferienzeiträume/Feiertage können eingestellt werden.
- Als Ferienzeitraum gilt sowohl ein einzelner Tag bis hin zu 365 aufeinanderfolgende Tage.
- 8 verschiedene Menüs stehen zur Verfügung, eines für jeden Wochentag und ein zusätzliches für Ferien.
- Ferienpläne haben gegenüber anderen Wochentagszeitplänen Vorrang.
- Jeder Wochentagszeitplan verfügt über bis zu zwei individuelle Nutzungszeiten.
- Tägliche individuelle Zeitprogramme für Stufe 2 und Stufe 1 verfügbar, mit jeweils bis zu zwei Nutzungszeiten.
Betriebsart / Modus
- Der integrierte Regler wird werkseitig auf die bestellte Betriebsart parametriert.
- Bereits bei der Gerätebestellung muss der erforderliche Betriebsmodus definiert sein. Dadurch wird eine zuverlässige Betriebsart sichergestellt da vor Ort keine Eingriffe ins Gerät erforderlich sind.
- Parametriert auf: siehe Modus gemäß technischen Daten.
Alarmmeldung
- Alarme werden in der Alarmliste protokolliert. Die Liste zeigt die Art des Alarms, Datum und Zeit und den Alarmtyp.
Sprachen
- Deutsch, Französisch, Russisch, Niederländisch, Englisch, Schwedisch.
Schnittstellen
- Folgende Schnittstellen zur Integration in die Gebäudeleittechnik stehen serienmäßig zur Verfügung:
- Ethernet-Schnittstelle für
- Modbus TCP/IP- Protokoll
BACnet/IP: BACnet-AAC (Advanced Application Controller) -Protokoll
- RS 485 Schnittstelle für
Modbus TCP/IP- Protokoll
Bedienmodul
- Zur Bedienung liegt dem RLT-Gerät ein Bedienmodul zur Wandmontage / Gerätemontage bei. Das Bedienmodul ist kabelgebunden und verfügt über ein vierzeiliges, hintergrundbeleuchtetes LCD-Display.
Allgemeines
- Die RLT-Geräte sind in 5 Volumenstrombereichen bis nominal 5500 m3/h und 4 Konfigurationen mit den Optionen Horizontal links, Horizontal rechts, Vertikal links und Vertikal rechts erhältlich. Wahlweise können Heiz- und Kühlregister sowie Absperrklappen ergänzt werden. Zubehör zur wetterfesten Außenaufstellung runden das System ab.
Optionales Zubehör
- Externes Pumpenkaltwasser- oder DX-Kühlregister
- Internes Elektrisches Vorheizregister [PH]
- Internes Elektroheizregister [EH]
- Internes Pumpenwarmwasserheizregister [WH]
- Touchdisplay
- Schalldämpfer
- AUL-/FOL-Klappen mit Stellantrieb
- Regendach für Außeninstallation
- AUL-/FOL- Hauben für Außeninstallation
- Betriebsmodus: Modus 3.Konstante Druckregelung parametriert. Integrierter Drucksensor. Druckkonstanter Betrieb mit variablem Volumenstrom (VAV-Regelung) mit Zuluftregelung über integrierten Drucksensor und Slave-verbundenem Abluftventilator.
Wasser-/Luft-Nachheizregister [WH]
- Das Wasser-/Luft-Nachheizregister [WH] ermöglicht eine komfortable Temperaturregelung.
- Das leistungsfähige Wasser-/Luft-Nachheizregister ist anschlussfertig in RLT-Gerät eingebaut.
- Heizleistung gemäß technischen Daten.
Artikel:
RLT 5500 MV4555VL-WH-Mode 3
- Ausführung: Linksausführung: Zuluft- und Abluftanschluss links / Wasser-Nachheizregister
- Fördervolumen: 1000 m3/h / 6900 m3/h
- Fördervolumen nominal: 5.500 m3/h
- ErP / LOT 6: NRVU / BVU, SFPint 1205 (W/(m3/s))
- Modus: Druckkonstant
- Bemessungsspannung: 400 V/3/N/PE
- Netzfrequenz: 50 Hz
- IMax Gerät: 8,7 A
- Schutzart: IP 44
- Empfohlene Sicherung Gerät: 16 A
- Leistungsaufnahme nominal: 1840 W
- Anmerkung Leistungsaufnahme nominal: gegen 200 Pa extern
- Einbauort: innen / außen
- Material Gehäuse: Stahlblech, verzinkt
- Gehäusedämmung: 45 mm Steinwolle (70 kg/m3), Klassifizierung A1 nach DIN 4102
- Farbe: ähnlich telegrau RAL 7047
- Gewicht: 1113 kg
- Gewicht mit Verpackung: 1075 kg
- Filterart: Plisseefilter
- Filterklasse: ISO ePM10 >= 50% (M5) ISO ePM1 >= 50% (F7)
- Brandschutz: Brandschutzklasse A1
- Anschlussdurchmesser Kondensatablauf: 1/2
- Stutzenhöhe saugseitig: 1124 mm
- Stutzenbreite saugseitig: 730 mm
- Stutzenhöhe druckseitig: 1124 mm
- Stutzenbreite druckseitig: 730 mm
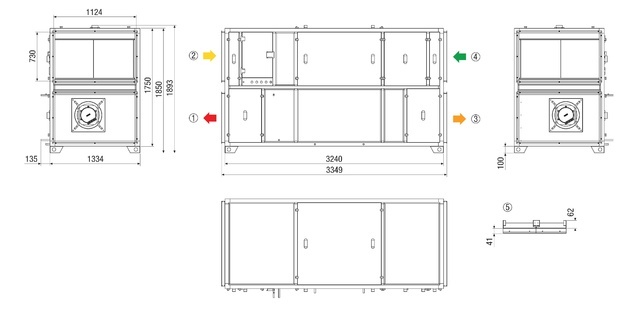
- Breite: 3240 mm
- Höhe: 1850 mm
- Tiefe: 1469 mm
- Breite mit Verpackung: 3360 mm
- Höhe mit Verpackung: 1990 mm
- Tiefe mit Verpackung: 1640 mm
- Umgebungstemperatur: -20 °C bis 40 °C
- max. Heizleistung WH (PWW-Heizregister): 57400 W
- Wärmetauscherbauart: Kreuz-Gegenstrom
- Wirkungsgrad: 82,6% nominal nach ErP (ohne Kondensation)
- EN 1886 Klassifikation: T2/TB2/L2/D1/F9
- RLT Kompaktgerät mit Wärmerückgewinnung. Anschlussfertig mit integriertem Controller und automatischem Bypass.
- Horizontale Ausführung (H): wahlweise für Innenaufstellung oder Deckenbefestigung, mit Regendach und Außenhaube auch als flaches Gerät zur Außenaufstellung geeignet.
- Vertikale Ausführung (V): wahlweise für Innen- oder Außenaufstellung.
- Leicht revisionierbar durch seitlich öffenbare und abnehmbare Revisionstüren. Geräteklassifikation A1 nach DIN 4102 (nicht brennbar). ErP- konform, VDI 6022 konform.
- Einhaltung folgender Richtlinien: Maschinenrichtlinie 2006/42/EC (Niederspannungsrichtlinie enthalten), EMV-Richtlinie 2014/30/EU, Ecodesign-Richtlinie 2009/125/EC (Regulierung Nr. 1253/2014 - LOT6) ,RoHS 2 Richtlinie 2011/65/EU.
Einsatzbereich
- Hocheffiziente RLT-Kompaktgeräte mit Wärmerückgewinnung für Gewerbe, Industrie, Büro- und Wohnungsbau.
Gehäuse
- Monoblockgehäuse in selbsttragender Rahmenbauweise. Die Gehäusestruktur besteht aus Aluminiumprofilen mit thermischen Trennungen durch in das Profil eingebaute Polyamid-Distanzstücke (Klasse TB2 gemäß EN 1886). Die Ecken bestehen aus glasfaserverstärktem Polyamid. Die Isolierung zwischen den doppelwandigen Paneelen besteht aus 45 mm (70 kg/m3) Steinwolle, was zu einer Wärmedurchgangsklasse T2 führt. Geräteklassifikation A1 nach DIN 4102 (nicht brennbar).
- Gehäuseklassifikation nach DIN EN 1886:
Wärmedurchgangskoeffizient: T2
Wärmebrückenfaktor: TB2
Gehäuse-Leckage-Klasse: L2
Mechanische Stabilität: D1
Filter-Bypass-Leckage: F9 (= <2%)
- Die Außenpaneele sind pulverbeschichtet in RAL 7047.
- Innenseite: Verzinktes Stahlblech. Glatte Innenoberflächen. In Kabelschutzrohren auf Abstandshaltern verlegte elektrische Leitungen. Separates, abschließbares Technikfach in Schutzklasse IP 65, in dem die elektrischen Komponenten und die Regelung untergebracht sind. Großzügig bemessene Revisionsöffnungen ermöglichen einen einfachen Zugang zu allen internen Komponenten bei Wartungsarbeiten.
- Kondensatwanne aus Edelstahl, alle weiteren Einbauteile sind aus verzinktem Stahl, Aluminium oder Edelstahl und somit hygienisch im Sinne der VDI 6022.
Paneele und Revisionstüren
- Wärmebrückenoptimierte Paneele und Revisionstüren aus verzinktem Stahlblech, thermisch entkoppelt, pulverbeschichtet zum besonderen Schutz vor Korrosion. Doppelwandiger Aufbau der Paneele in Sandwichbauweise mit innenliegender, nicht brennbarer Steinwolle (Stärke: 45 mm, Dichte 70 kg/m3, Baustoffklasse A1 nach DIN 4102 (nicht brennbar)) für beste Schall- und Wärmedämmung.
- Über die gesamte Bedienhöhe des Gerätes sind beidseitig seitlich großzügig bemessene Revisionsöffnungen für optimalen Zugang nach VDI 6022 platziert und ermöglichen einen einfachen Zugang bei Wartungsarbeiten.
- Die Revisionstüren sind mit druckadaptiver Dichtung zur Anpassung an die Druckverhältnisse im Gerät ausgestattet.
Beschichtung
- Die Beschichtung der Außenpaneele ist UV-beständig pulverbeschichtet in RAL 7047 und bietet besonderen Schutz vor Korrosion.
Montage
- Zur stehenden Bodenmontage ist das Gerät mit 100 mm hohem Profilfüßen ausgestattet. Die Profilfüße sind bei Bedarf demontierbar.
- Zur hängenden Deckenmontage kann das Horizontale Gerät (H) mit optionalen Deckenmontagewinkeln für Gewindestangen M12 ausgestattet werden.
- Zur Außenaufstellung sind optional erhältlich:
Außenluft- und Fortluftklappen mit Klappenstellmotor
Regenschutz für Klappenstellmotor
Außen- und Fortlufthauben
Regendach
Unterdrucksiphon
Siphonbegleitheizung
Ventilatoren
- Direkt angetriebene, einseitig saugende EC-Radialventilatoren mit rückwärts gekrümmten Laufradschaufeln aus Verbundwerkstoff für optimierten Wirkungsgrad und minimierten Geräuschpegel. Wartungsfreie, abgedichtete Kugellager mit Langzeitschmierung. Befestigt direkt in Frontkammer ohne zusätzliche Montageschiene zur vollständigen Reinigbarkeit nach VDI 6022.
- Laufrad aus hochfesten Verbundwerkstoffen mit strömungsoptimierter Einströmdüse aus verzinktem Stahlblech mit Druckmessstutzen. Statisch und dynamisch gewuchtetes Laufrad gemäß DIN ISO 21940-11. Schwingungsgeprüft in Anlehnung an die ISO 14694, max. Schwingstärke beträgt 3,5 mm/s.
- EC-Außenläufermotor mit integrierter Steuerungselektronik ohne Seltene-Erden Magnete mit hocheffizienter elektronischer Kommutierung (EC), integrierter thermischer Abschaltung und Drehzahlregelung. Die EC-Technologie ist eine ökologische Lösung, welche einen niedrigen Energieverbrauch für Steuerung, Kontrolle und Regelung des Betriebspunktes bei Volumenströmen von 10 bis 100 % gewährleistet. Dies begünstigt einen niedrigen Geräuschpegel für besseren akustischen Komfort. Integrierter Blockierschutz, Phasenausfallerkennung, Sanftanlauf, Übertemperaturschutz Elektronik, Motorunterspannungsausfallerkennung, Leistungsbegrenzung, Motorstrombegrenzung.
- Die Ventilatoren erfüllen die aktuellen EMV-Richtlinien und Anforderungen bezüglich Netzrückwirkungen und EMV-Störfestigkeit.
- Schutzart des Ventilators: IP 55, Isolationsklasse F, Feuchte- (F) / Umweltschutzklasse (H) H1.Die Wirkungsklasse des Motors übertrifft die Klasse IE4.
Wärmerückgewinnung
- Hocheffizienter sechseckiger Gegenstrom-Plattenwärmetauscher aus seewasserbeständigem Aluminium. Wirkungsgrad > 90 % nach DIN EN 13141-7, größer 87% nach ErP Ecodesignrichtlinie 1253/2014.
- Eurovent zertifiziert. Zur Nutzung der sensiblen und latenten Wärmeenergie welche in den Luftströmen enthalten ist. Die Außenluft- und Abluftströme werden getrennt über parallel angeordnete dünne Aluminiumplatten im Gegenstromprinzip aneinander vorbeigeführt. Der integrierte Bypass im Außenluft- / Zuluftstrom angeordnet sichert den Einfrierschutz im Frostschutzfall und dient der freien Kühlung im Sommerfall.
Kondensatwanne:
- Hygienisch einwandfreier Kondensatablauf im Gerät durch Edelstahlkondensatwanne, lasergeschweißt. Anschlussdurchmesser . Komplett unter dem Wärmetauscher platziert.
Bypassklappe
- Bypassklappe zur freien Kühlung und zum Frostschutz. Modulierend durch stetig regelnden Bypassantrieb. Handverstellung mit Drucktaste möglich. Der Antrieb ist überlastsicher und wartungsfrei. Leistungsverbrauch im Betrieb 1.5 W, Leistungsverbrauch in Ruhestellung 0.4 W. Bypassklappen im Aluminiumgehäuse mit Zahnradgetriebe und gegenläufig gekoppelten, kunststoffgelagerten Profillamellen aus Aluminium mit Dichtlippe, Dichtigkeitsklasse 2 gemäß DIN EN 1751. Klappenantrieb sowie Zahnräder außerhalb des Luftstroms angeordnet, dadurch für erhöhte Hygienebedingungen nach VDI 6022 geeignet. Energiesparender fertig verdrahteter Klappenantrieb als stetig regelnder Stellmotor für Modulation von 0 bis 100%.
- Der integrierte Bypass im Außenluft- / Zuluftstrom angeordnet sichert den Einfrierschutz im Frostschutzfall und dient der freien Kühlung im Sommerfall. Wenn das Gerät mit einer elektrischen Vorheizung ausgestattet ist, wählt die Regelung automatisch die optimale Lösung. Im Sommerfall regelt der Bypass durch Modulation auf die eingestellte Zulufttemperatur.
Filter
- Das Wärmerückgewinnungsgerät ist standardmäßig mit einem hocheffizienten ePM1 50 % Filter am Außenlufteingang und einem ePM10 50 % Paneelfilter am Ablufteingang ausgestattet. Die Filter werden stets vor den jeweiligen Bauteilen angebracht, um deren Schutz zu gewährleisten. Sie sind auf Schienen mit Lippendichtungen montiert, um eine effektive Luftdichtheit zu gewährleisten. Filtermeldung via Druckdifferenzmessung am Außenluftfilter und am Abluftfilter, einstellbar von 50 bis 500 Pascal, voreingestellt auf 150 Pascal.
Kanalanschluss
- Geräte mit runden Kanalanschlüssen werden mit Gummilippendichtungen geliefert.
- Geräte mit rechteckigen Kanalanschlüssen sind für den Anschluss von Rechteckkanal mit 20 mm Profil vorgesehen. Das Profil ist mit einem Dichtungsband zu ergänzen.
- Anschlussgröße gemäß technischen Daten.
Absperrklappen für Außenluft und Fortluft
- Außenluft- und Fortluftklappen im Aluminiumgehäuse mit Zahnradgetriebe und gegenläufig gekoppelten, kunststoffgelagerten Profillamellen aus Aluminium mit Dichtlippe, Dichtigkeitsklasse 2 gemäß DIN EN 1751. Klappenantrieb sowie Zahnräder außerhalb des Luftstroms angeordnet, dadurch für erhöhte Hygienebedingungen nach VDI 6022 geeignet.
- Außenluft- und Fortluftklappen sind optional bestellbar. Die Klappen werden bei Bestellung werkseitig außen am Geräterahmen montiert und der Stellmotor elektrisch angeschlossen.
- Anschlussgröße gemäß technischen Daten.
Technikfach
- Separates, abschließbares Technikfach in Schutzklasse IP 65, in dem die elektrischen Komponenten und die Regelung untergebracht sind. Separate Ablage innerhalb des Technikfaches für beiliegendes Schaltplanheft.
- Kabelenden innerhalb des Technikfaches mit eindeutiger Nummerierung mittels Kabelkennzeichnung an jedem Anschlusspunkt und in beiliegenden Anschlussplan zur verwechslungsfreien Zuordnung.
Kabelanschluss
- Plug & Play Anschluss: 5-poliger Anschluss am Klemmblock X1 innerhalb des separaten, abschließbaren Technikfaches.
- Bemessungsspannung gemäß technischen Daten.
- Empfohlener Fehlerstromschutzschalter: Klasse B oder B+, Auslösefehlerstrom siehe technische Daten.
- Empfohlene Sicherungen für Netzanschluss: D-Typ träge, D-10.000 A - AC3
Elektrische Verdrahtung
- Industriell gefertigter Kabelbaum, übersichtliche Leitungsverlegung und ungehinderter Zugang zu den Komponenten bei Wartung sowie beste Reinigungsmöglichkeit der Oberflächen.
- Kabelenden innerhalb des Technikfaches mit eindeutiger Nummerierung mittels Kabelkennzeichnung an jedem Anschlusspunkt und in beiliegenden Anschlussplan zur verwechslungsfreien Zuordnung.
- Aufgeräumte Kabelverlegung mit einzelnen Kabelschutzschläuchen und Abstandshaltern zu den Komponenten innerhalb des Gerätes. Kabelschutzschläuche in Kabelverschraubung eingeführt, keine offenen Leitungen sichtbar.
Regelung
- Vollintegrierte, komplett verkabelte Regeleinheit inkl. allpolig trennenden Hauptschalter. Regeleinheit komplett vor Umwelteinflüssen in Technikfach Schutzart IP 65 integriert.
- Integrierter Webbrowser.
- Integrierte Sicherungselemente für sämtliche auf das Lüftungsgerät abgestimmte Steuer- und Regelungsfunktionen:
- Motorschutzschalter mit Phasenausfallerkennung, Kurzschluss-Schutz mit magnetischem Kurzschlussauslöser.
- Leitungsschutzschalter 230 V, Auslösecharakteristikklasse C,
- IG-Reparaturschalter, 4-phasig, IP 54, CE-konform,
- Gewährleistung der elektrischen Sicherheit gem. folgender Richtlinien: Maschinenrichtlinie 2006/42/EC (Niederspannungsrichtlinie enthalten), EMV-Richtlinie 2014/30/EU sowie komplette Funktionsprüfung ab Werk.
- Betriebsfertig mit Reparaturschalter. Integriertes Schaltnetzteil 230 V AC / 24 V DC, 2,5 A.
- Zeitprogrammierung für Wochenpläne inklusive Ferien und Feiertage für ein ganzes Jahr. Automatische Sommer- und Winterzeitumstellung. Individueller Zeitplan für jeden Wochentag plus separatem Ferien- und Feiertagsplan. Bis zu 24 verschiedene Ferienzeiträume/Feiertage können eingestellt werden.
- Als Ferienzeitraum gilt sowohl ein einzelner Tag bis hin zu 365 aufeinanderfolgende Tage.
- 8 verschiedene Menüs stehen zur Verfügung, eines für jeden Wochentag und ein zusätzliches für Ferien.
- Ferienpläne haben gegenüber anderen Wochentagszeitplänen Vorrang.
- Jeder Wochentagszeitplan verfügt über bis zu zwei individuelle Nutzungszeiten.
- Tägliche individuelle Zeitprogramme für Stufe 2 und Stufe 1 verfügbar, mit jeweils bis zu zwei Nutzungszeiten.
Betriebsart / Modus
- Der integrierte Regler wird werkseitig auf die bestellte Betriebsart parametriert.
- Bereits bei der Gerätebestellung muss der erforderliche Betriebsmodus definiert sein. Dadurch wird eine zuverlässige Betriebsart sichergestellt da vor Ort keine Eingriffe ins Gerät erforderlich sind.
- Parametriert auf: siehe Modus gemäß technischen Daten.
Alarmmeldung
- Alarme werden in der Alarmliste protokolliert. Die Liste zeigt die Art des Alarms, Datum und Zeit und den Alarmtyp.
Sprachen
- Deutsch, Französisch, Russisch, Niederländisch, Englisch, Schwedisch.
Schnittstellen
- Folgende Schnittstellen zur Integration in die Gebäudeleittechnik stehen serienmäßig zur Verfügung:
- Ethernet-Schnittstelle für
- Modbus TCP/IP- Protokoll
BACnet/IP: BACnet-AAC (Advanced Application Controller) -Protokoll
- RS 485 Schnittstelle für
Modbus TCP/IP- Protokoll
Bedienmodul
- Zur Bedienung liegt dem RLT-Gerät ein Bedienmodul zur Wandmontage / Gerätemontage bei. Das Bedienmodul ist kabelgebunden und verfügt über ein vierzeiliges, hintergrundbeleuchtetes LCD-Display.
Allgemeines
- Die RLT-Geräte sind in 5 Volumenstrombereichen bis nominal 5500 m3/h und 4 Konfigurationen mit den Optionen Horizontal links, Horizontal rechts, Vertikal links und Vertikal rechts erhältlich. Wahlweise können Heiz- und Kühlregister sowie Absperrklappen ergänzt werden. Zubehör zur wetterfesten Außenaufstellung runden das System ab.
Optionales Zubehör
- Externes Pumpenkaltwasser- oder DX-Kühlregister
- Internes Elektrisches Vorheizregister [PH]
- Internes Elektroheizregister [EH]
- Internes Pumpenwarmwasserheizregister [WH]
- Touchdisplay
- Schalldämpfer
- AUL-/FOL-Klappen mit Stellantrieb
- Regendach für Außeninstallation
- AUL-/FOL- Hauben für Außeninstallation
- Betriebsmodus: Modus 3.Konstante Druckregelung parametriert. Integrierter Drucksensor. Druckkonstanter Betrieb mit variablem Volumenstrom (VAV-Regelung) mit Zuluftregelung über integrierten Drucksensor und Slave-verbundenem Abluftventilator.
Wasser-/Luft-Nachheizregister [WH]
- Das Wasser-/Luft-Nachheizregister [WH] ermöglicht eine komfortable Temperaturregelung.
- Das leistungsfähige Wasser-/Luft-Nachheizregister ist anschlussfertig in RLT-Gerät eingebaut.
- Heizleistung gemäß technischen Daten.
Artikel:
RLT 5500 MV4555VL-WH-Mode 3
- Ausführung: Linksausführung: Zuluft- und Abluftanschluss links / Wasser-Nachheizregister
- Fördervolumen: 1000 m3/h / 6900 m3/h
- Fördervolumen nominal: 5.500 m3/h
- ErP / LOT 6: NRVU / BVU, SFPint 1205 (W/(m3/s))
- Modus: Druckkonstant
- Bemessungsspannung: 400 V/3/N/PE
- Netzfrequenz: 50 Hz
- IMax Gerät: 8,7 A
- Schutzart: IP 44
- Empfohlene Sicherung Gerät: 16 A
- Leistungsaufnahme nominal: 1840 W
- Anmerkung Leistungsaufnahme nominal: gegen 200 Pa extern
- Einbauort: innen / außen
- Material Gehäuse: Stahlblech, verzinkt
- Gehäusedämmung: 45 mm Steinwolle (70 kg/m3), Klassifizierung A1 nach DIN 4102
- Farbe: ähnlich telegrau RAL 7047
- Gewicht: 1113 kg
- Gewicht mit Verpackung: 1075 kg
- Filterart: Plisseefilter
- Filterklasse: ISO ePM10 >= 50% (M5) ISO ePM1 >= 50% (F7)
- Brandschutz: Brandschutzklasse A1
- Anschlussdurchmesser Kondensatablauf: 1/2
- Stutzenhöhe saugseitig: 1124 mm
- Stutzenbreite saugseitig: 730 mm
- Stutzenhöhe druckseitig: 1124 mm
- Stutzenbreite druckseitig: 730 mm
- Breite: 3240 mm
- Höhe: 1850 mm
- Tiefe: 1469 mm
- Breite mit Verpackung: 3360 mm
- Höhe mit Verpackung: 1990 mm
- Tiefe mit Verpackung: 1640 mm
- Umgebungstemperatur: -20 °C bis 40 °C
- max. Heizleistung WH (PWW-Heizregister): 57400 W
- Wärmetauscherbauart: Kreuz-Gegenstrom
- Wirkungsgrad: 82,6% nominal nach ErP (ohne Kondensation)
- EN 1886 Klassifikation: T2/TB2/L2/D1/F9
technische Daten
Hersteller: Maico
Verpackungseinheit: 1
Bezeichnung: Kompaktgerät MV4555VLWH
Typenbezeichnung: RLT5500MV4555VLWH3
Hersteller - Artikelnummer: 0040.2610
Aufstellung Gerät: Innen- und Außenaufstellung
Werkstoff des Gehäuses: Stahl verkleidet
Max. Luftvolumen bei 50 Pa: 6700 m³/h
Max. Luftvolumen bei 100 Pa: 6600 m³/h
Max. Luftvolumen bei 150 Pa: 6500 m³/h
Max. Luftvolumen bei 200 Pa: 6370 m³/h
Max. Luftvolumen bei 250 Pa: 6250 m³/h
Max. Luftvolumen bei 300 Pa: 6130 m³/h
Max. Luftvolumen bei 400 Pa: 5850 m³/h
Max. Luftvolumen bei 500 Pa: 5500 m³/h
Max. Luftvolumen bei 600 Pa: 5200 m³/h
Lüftertyp: direkt
Motortyp: EC (elektronisch kommutiert)
Wärmerückgewinnung über: Kreuzgegenströmer
Art der Kühlbatterie: ohne
Art der Heizbatterie: Warmwasser-Wärmeaustauscher
Change-over-System: nein
Mit Bypass: ja
Zuluftfilter nach ISO 16890-1:2016: ISO ePM1
Wirkungsgrad des Versorgungsfilters nach ISO 16890-1:2016: 50 %
Abluftfilter nach ISO 16890-1:2016: ISO ePM10
Effizienz des Abluftfilters nach ISO 16890-1:2016: 50 %
Mit Kondensatablauf: ja
Frostschutzschaltung: ja
Mit konstanter Druckregelung: ja
Mit konstanter Volumenstromregelung: nein
Anschlussspannung: 3x 400 V AC +N
Elektrischer Anschluss: Anschlussklemmen
Mit thermischem Schutz: ja
Leistungsaufnahme: 1,84 kW
Thermischer Ertrag: 82,6 %
Geeignet für elektronische Steuerung: ja
Geeignet für Schwachstromregelung: nein
Mit Drehzahl-/Frequenzregelung: nein
Geeignet für Traforegelung: nein
Nennbreite Kanal Innenanschluss: 730 mm
Nennhöhe Kanal Innenanschluss: 1225 mm
Nennbreite Kanal Außenanschluss: 730 mm
Nennhöhe Kanal Außenanschluss: 1225 mm
Anschluss: sonstige
Schutzart (IP): IP44
Länge: 3240 mm
Breite: 1750 mm
Höhe: 1434 mm
Mit Dachblech: ja
Mit Stützrahmen: nein
Länge: 3360
Breite: 1990
Höhe: 1640
Zolltarifnummer: 84195080
Ursprungsland: TR
Reachkennzeichen: N
Kennzeichen Abakus: N
Artikelklasse: Lüftungsgerät mit Wärmerückgewinnung gewerblich
Lagerstatus
Lagerkennzeichen: Nichtlagerartikel () - Dieser Artikel kann bei positiven Lagerbestand nur noch abverkauft und auch beim Hersteller nachgeordert werden. Eine unter Umständen notwendige Nachbestellung beim Hersteller sollte nicht länger als 14 Tage in Anspruch nehmen. Achten Sie daher auf die Livelagerabfrage bzw. auf die Statusmeldung unseres Lagers im Warenkorb.
Produkt-Fragen