Vaillant Wandheizgerät Kamin VC 104/4-7 A E

Art.Nr.: 10461326699

EAN: 4024074750339

Verkaufseinheit: 1 Stück

Hersteller:  Vaillant

Update: 07.04.26, 06:37 Uhr



Artikel nicht lagernd
Artikel nicht lagernd
Prüfe Expressversandoptionen...

3.070,94 EUR UVP 4.472,02 EUR Sie sparen 31.3% (1.401,08 EUR) inkl. 19 % USt


Produktbeschreibung

atmoTEC exclusive VC 104/4-7A
Gas-Wandheizgerät mit Kaminanschluss
Produktvorteile
- Modulierend geregelte Leistung
- GEG-Sicherheit: Betrieb mit bis zu
100% Bio-Erdgas serienmäßig möglich
- Hocheffizienz-Pumpe
- Aqua-Power-Plus
- System Pro E
- Waagerechte Hydraulikanschlüsse
für im Gerätegehäuse einbaubares
Installationszubehör und flexiblen
Einsatz bei der Modernisierung
Ausstattung
- Hocheffizienz-Pumpe, Wasserdrucksensor
und Manometer, 12 l Ausdehnungsgefäß,
automatischer Schnellentlüfter
und Heizungs-Sicherheitsventil
- Variorahmen
- Wassergekühlter, atmosphärischer
Vormischbrenner
- Elektronische Teillasteinstellung
- Vorrangumschaltventil und Speicher-
anschluss integriert
- Hydraulische und gasseitige Vorin-
stallation möglich
- DIA-System mit Klartextdisplay, be-
leuchtet
- Serviceblende
Gasart Erdgas E
Nennleistungsbereich
80/60 Grd.C 4,8-10,0 kW
Speicherladeleistung 10,0 kW
max. Wärmebelast. Heizbetrieb 11,1 kW
min. Wärmebelast. 5,3 kW
Normnutzungsgrad 84 % (Hs) / 93 % (Hi)
Restförderhöhe der Pumpe 250 mbar
Vorlauftemperatur max. 85 Grd.C
Elektroanschluss 230/50 V/Hz
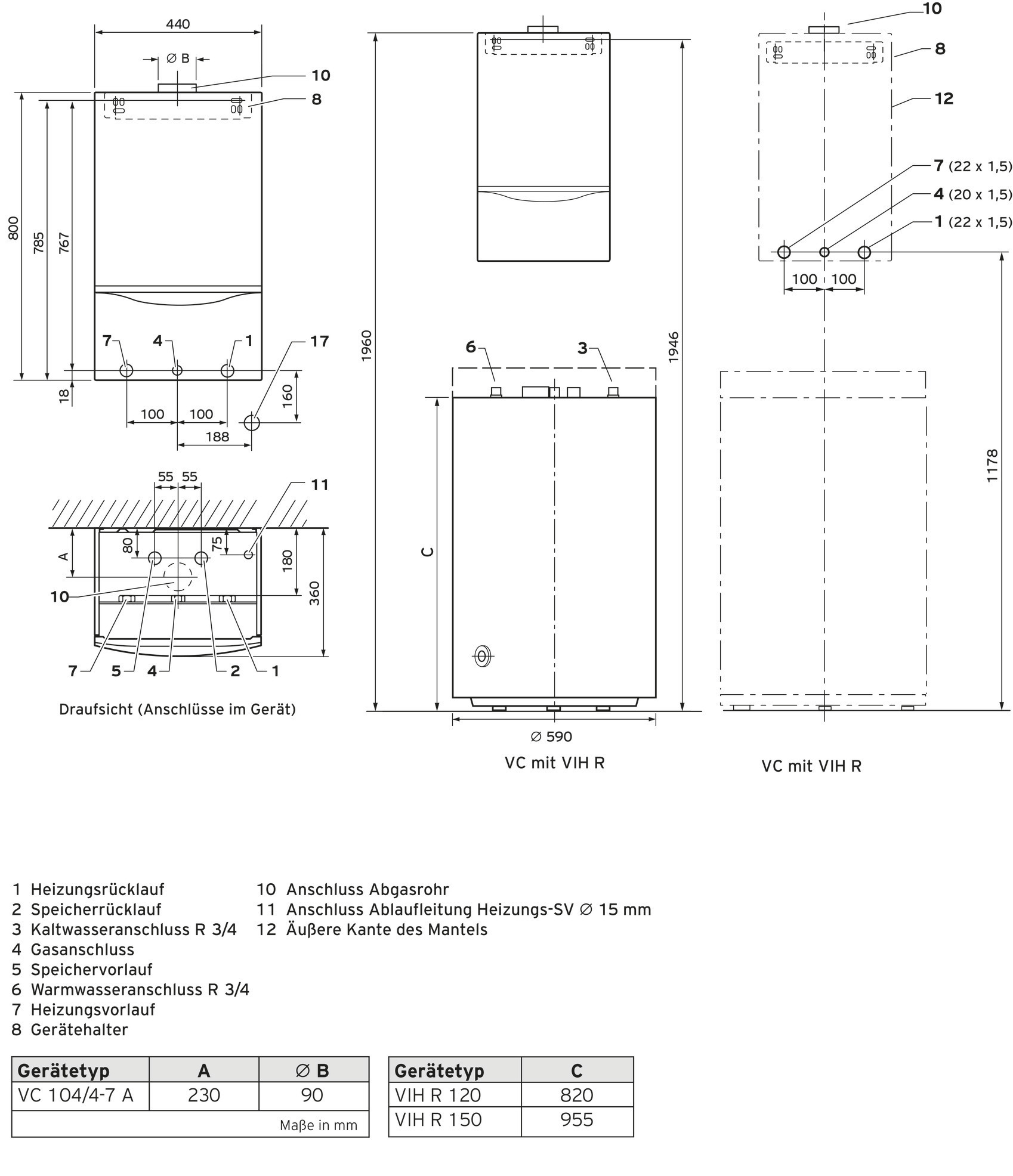
Vor-/Rücklaufanschluss G 3/4
Gasanschluss G 1/2
Abgasanschluss 90 mm
Höhe/Breite/Tiefe 800/440/360 mm
Gewicht 39 kg
CE PIN CE-0085BS0340
Gasgerätekategorie I2ELL, I3P
Jahreszeitbedingte Raumheizungs-
Energieeffizienzklasse C
(Spektrum A+++ bis D)

technische Daten

Hersteller: Vaillant
Verpackungseinheit: 1
Bezeichnung: Wandheizgerät Kamin
Typenbezeichnung: VC 104/4-7 A E
Hersteller - Artikelnummer: 0010018741
Geschlossene Ausführung: ja
Kondensierend: ja
Betrieb als offene (Luftzufuhr) Ausführung möglich: ja
Nennleistung 80-60 °C: 10 kW
Nennlast oberer Wert: 10 kW
Nennlast unterer Wert: 4,8 kW
Brennerregulierung hoch/niedrig: nein
Brennerregulierung modulierend: ja
Kontrollsignal OpenTherm: nein
Zündflamme: nein
Zweiter Rücklaufanschluss: nein
Max. Zulauftemperatur (Arbeitstemperatur): 75 °C
Max. Arbeitsdruck: 3 bar
Min. Arbeitsdruck: 0,2 bar
Max. Gasvordruck: 25 mbar
Min. Gasvordruck: 18 mbar
Eingebauter Füll-/Entleerungshahn: nein
Eingebautes Manometer: ja
Eingebauter witterungsanhängiger Regler: nein
Eingebautes Ausdehnungsgefäß: nein
Eingebautes Überdruckventil: ja
Höhe: 800 mm
Breite: 440 mm
Tiefe: 360 mm
Anschluss Vorlauf: Außengewinde
Rohraußendurchmesser Zulauf: 26,44 mm
Anschluss Rücklauf: Außengewinde
Rohraußendurchmesser Rücklauf: 26,44 mm
Anschluss Kraftstoff: sonstige
Rohraußendurchmesser Kraftstoff: 20,95 mm
Anschluss Luftzufuhr: Muffe
Anschluss Rauchgasabfuhr: Muffe
Nenndurchmesser Kanal Rauchgasabfuhr: 90 mm
Kondensatanschluss: sonstige
Energieeffizienz Warmwasser: 90 %
Energieeffizienzklasse: C
Nutzwärme-Abgabe bei Nennwärmeabgabe in Betrieb bei hoher Temperatur (P4): 9,719 kW
Effizienz-Nutzen bei Nennwärmeemission bei hoher Temperatur (n4): 78,18 %
Zusätzlicher Stromverbrauch bei Volllast (elmax): 0,06 kW
Länge: 950
Breite: 400
Höhe: 580
Gewicht: 40,2
Zolltarifnummer: 85169000
Ursprungsland: DE
Reachkennzeichen: J
Kennzeichen Abakus: N
Artikelklasse: Gaswandkessel

Lagerstatus

Lagerkennzeichen: Nichtlagerartikel () - Dieser Artikel kann bei positiven Lagerbestand nur noch abverkauft und auch beim Hersteller nachgeordert werden. Eine unter Umständen notwendige Nachbestellung beim Hersteller sollte nicht länger als 14 Tage in Anspruch nehmen. Achten Sie daher auf die Livelagerabfrage bzw. auf die Statusmeldung unseres Lagers im Warenkorb.

Produkt-Fragen

Ihre Frage zum Produkt