Vaillant Paket 1.622 ecoTEC pure 0010029588
Art.Nr.: 10461075299
EAN: 4024074863053
Verkaufseinheit: 1 Stück
Hersteller: Vaillant
Update: 26.03.26, 04:10 Uhr
3.754,91 EUR UVP 5.468,05 EUR Sie sparen 31.3% (1.713,14 EUR) inkl. 19 % USt
Produktbeschreibung
VC 146/7-2, VRC 700, Zubehör
Produktvorteile
- Wirkungsgrad bei 30%
gem. EN 15502 107 %
- Wirkungsgr. bei Warmwasserbetr. 98,9 %
- Modulationsbereich von 45 % bis 100 %
- Pneumatischer Gas-Luft-Verbund
- Automatische Teillastanpassung
- Optimale Verbrennung dank Multi-
Sensorik-System
- Aqua-Kondens-System, Speicherladung
mit Brennwertnutzung
- Aqua-Power-Plus für bis zu 21 % mehr
Warmwasserleistung
- Intuitiv bedienbares Geräte-Display
- Senkrechte Hydraulikanschlüsse und
umfangreiches Installationszubehör für
flexiblen Einsatz im Lieferumfang
- Einsetzbar in der Mehrfachbelegung mit
bis zu 5 Geräten (nur Erdgas E und LL)
- Kombinierbar mit Solarsystem oder
Wärmepumpe
- Raumluftabhängige oder -unabhängige
Betriebsweise
mit systemzertifizierten Abgassystem
- Betrieb mit Erdgas E, LL, Bio-Erdgas,
Flüssiggas
Ausstattung
- Hocheffizienz-Pumpe
- Wasserdrucksensor
- Volumenstromsensor
- 8 Liter ADG, SI-Ventil 1/2
- Integral-Kondensationswärmetauscher
aus Edelstahl
- Integrierte Speicher-/Warmwasser-
regelung mit Vorrangumschaltventil
- DIA-System mit Klartextdisplay,
beleuchtet
- eBUS-Schnittstelle
- Integrierte Ansteuerungsmöglichkeit
einer ext. Heizungs-, Speicherlade-
oder Zirkulationspumpe
Leistung bei
50/30 Grd.C (Erdgas E/LL, Flüssiggas)
6,9-14,8 kW
60/40 Grd.C (Erdgas E/LL, Flüssiggas)
6,7-14,2 kW
80/60 Grd.C (Erdgas E/LL, Flüssiggas)
6,2-13,4 kW
Leistung bei WW-Bereitung 6,5-18,2
kW
Normnutzungsgrad 98 % (Hs) / 109 % (Hi)
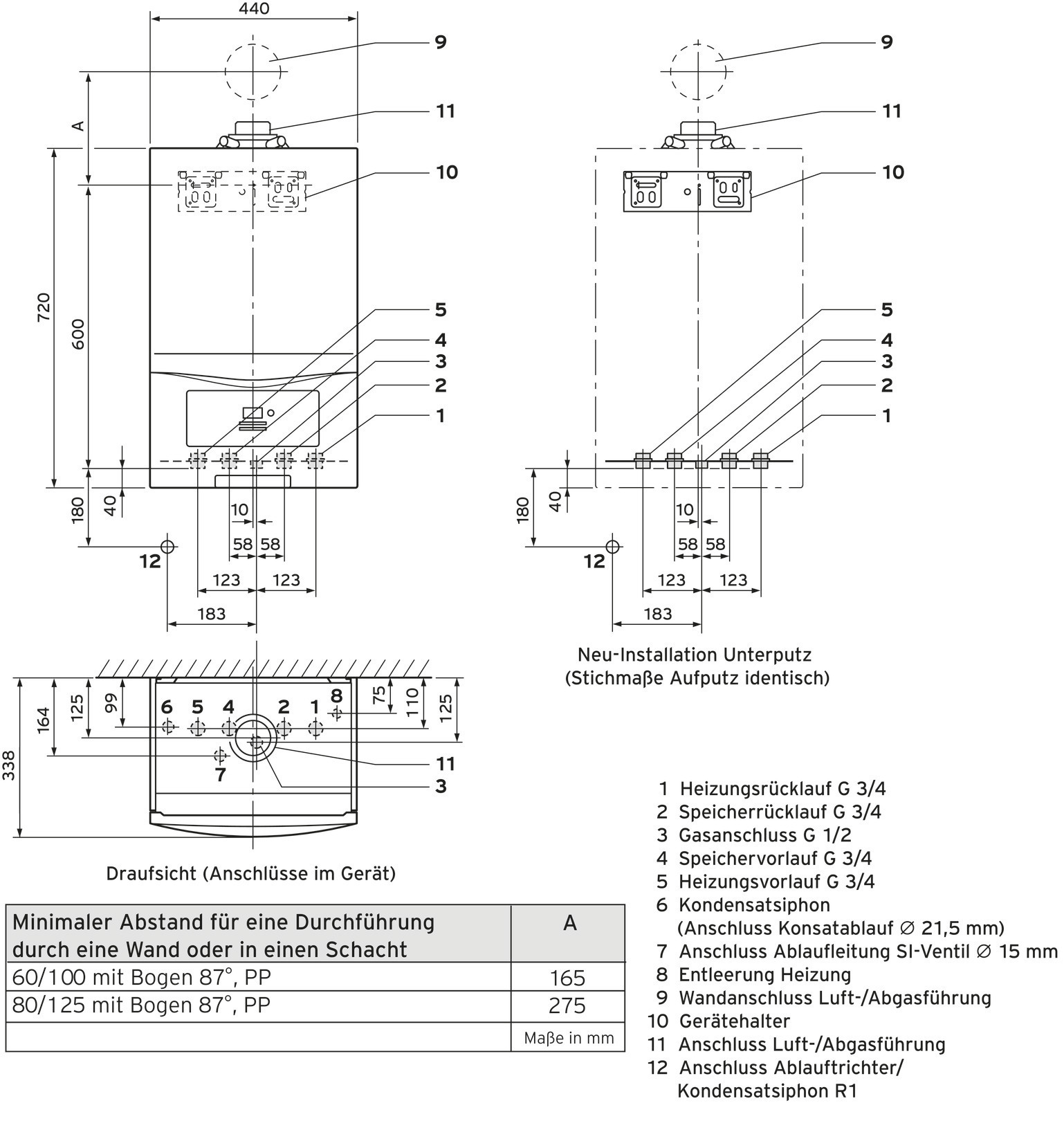
Vor-/Rücklaufanschluss G 3/4
Gasanschluss G 1/2
Luft-/Abgasanschluss 60/100 mm
Höhe/Breite/Tiefe 720/440/338 mm
Gewicht 30,0 kg
CE CE-0063 CR 3775
Jahreszeitbedingte Raumheizungs-
Energieeffizienzklasse A
1 x 0010030693 VC 146/7-2
1 x 0020266797 VRC 700/6
1 x 0010030692 Anschlusszubehör
technische Daten
Lagerstatus
Lagerkennzeichen: Nichtlagerartikel () - Dieser Artikel kann bei positiven Lagerbestand nur noch abverkauft und auch beim Hersteller nachgeordert werden. Eine unter Umständen notwendige Nachbestellung beim Hersteller sollte nicht länger als 14 Tage in Anspruch nehmen. Achten Sie daher auf die Livelagerabfrage bzw. auf die Statusmeldung unseres Lagers im Warenkorb.
zusätzliche Produktinformationen von Vaillant
Produkt-Fragen
